新築戸建管理番号:33996-1

  • 外観
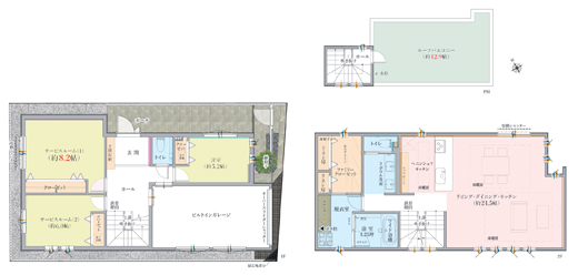
  • 間取図
  • LDK
  • キッチン
  • バスルーム
各画像クリックで拡大
路線・最寄駅 東急東横線 学芸大学駅 徒歩 17 分
その他交通手段 東急田園都市線「駒沢大学」駅徒歩15分

東急東横線「都立大学」駅徒歩18分

所在地 目黒区柿の木坂3丁目
価格 19,990 万円(税込)
敷地面積 106.64m²
間取 1SLDK
建築確認番号
土地権利 所有権   地目 宅地
延床面積 143.46m²   現況 完成済
建物構造 木造   地上/地下 2 / -
建蔽率 60%   容積率 150%
都市計画 市街化   用途地域 1種低層
駐車場   セットバック
私道面積
接道状況 南東側 4m 私道
築年月 2025年12月
引渡し 即時
地代   借地期間
国土法届出 不要   取引態様 媒介
備考 間取:1LDK+2S/土地面積には、協定地0.245㎡を含む/私道持分なし、使用承諾書取得済/建物面積には、車庫部分18.83㎡を含む
QRコード
  • この物件近隣の小学校
  • この物件近隣の中学校
※ 姉妹サイトが別ウインドウで開きます
  • 1号棟■制振装置「マモリー」設置で地震対策も安心
  • ■2路線3駅アクセス可能な立地。渋谷、横浜、池袋、新宿、大手町に直結■省エネ基準適合住宅
  • ■鉄骨階段×24帖超のLDK■水栓付き約12.9帖のルーフバルコニー■約4帖のファミリークローゼット
この物件の現地を見たい
この物件の資料が欲しい

周辺MAP

 
目黒区柿の木坂3丁目周辺の地図です。物件の所在地を特定するものではありません。

おすすめ物件Recommend

13110
 
新築戸建
東急東横線 学芸大学
柿の木坂
18,590 万円 (税込)
2号棟■制振装置「マモリー」設置で地震対策も安心
13110
 
中古戸建
東急東横線 中目黒
上目黒
20,800 万円
■複数路線利用可能で、通勤・通学の利便性良好です■2020年2月築、建物コンディション良好です
13112
 
新築戸建
東急田園都市線 池尻大橋
池尻
20,800 万円 (税込)
■東南角地・7m×4m公道に面する、建物230㎡超5LDK【新築戸建】
13115
 
中古戸建
JR中央・総武線 西荻窪
今川
18,800 万円 (税込)
■4台が駐車可能なスペース付設の中古戸建が杉並区今川4丁目に登場
お気軽にお問い合わせください 03-3424-8111
定休日
毎週水曜日
メールでのお問い合わせはこちら

Company

株式会社 健ハウジング
東京都世田谷区北沢2-1-16(本社)
小田急線/井の頭線 下北沢駅 徒歩5分
  • 不動産売買物件
  • 不動産賃貸物件
  • 不動産投資収益物件
  • 採用サイト
  • facebook
Copyright (C)1998-2026 株式会社健ハウジング / 世田谷区の不動産会社