【新築戸建】
高台に建つ全3邸「梅丘1丁目」

■「梅ヶ丘」駅徒歩3分、高台の住宅街に佇む全3邸
■実績ある「イトーピアホーム」施工・アフターサービス
■建物100㎡以上とゆとりのある空間に
 オリジナルキッチンをはじめ、こだわりの仕様の数々をご覧ください

戸建
名称 【新築戸建】高台に建つ全3邸「梅丘1丁目」
所在地 東京都世田谷区梅丘1丁目
交通 小田急線「梅ヶ丘」駅徒歩3分
世田谷線「山下」駅徒歩7分
QRコード
  • この物件の近隣の小学校
  • この物件の近隣の中学校
名称
【新築戸建】高台に建つ全3邸「梅丘1丁目」
所在地
東京都世田谷区梅丘1丁目
交通
小田急線「梅ヶ丘」駅徒歩3分
世田谷線「山下」駅徒歩7分
設備
東京電力・都市ガス・公営上下水道
土地権利
旧法借地権(新規20年)
地目
宅地
地代
A号棟:月額29,358円
B号棟:ご成約済み
C号棟:ご成約済み
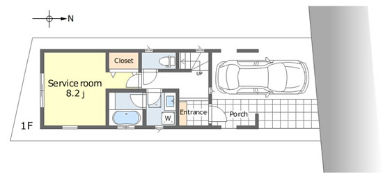
間取り
A号棟:4LDK
B号棟:ご成約済み
C号棟:ご成約済み
敷地面積
A号棟:70.45㎡(21.31坪)
B号棟:ご成約済み
C号棟:ご成約済み
建物面積
A号棟:105.77㎡(31.99坪)
B号棟:ご成約済み
C号棟:ご成約済み
建物構造
木造3階建
完成
2020年(令和2年)5月下旬予定
現況
建築中
引渡
相談
都市計画
市街化区域
用途地域
第1種低層住居専用地域
総棟数
全3棟
今回販売棟数
2棟
建ぺい率
60%(A号棟:70%)
容積率
150%
高度地区
第一種高度地区
道路
北側6m公道
西側3.5m公道
建築確認番号
A号棟:第KBI-YKH19-10-3026号
B号棟:ご成約済み
C号棟:ご成約済み
その他規制
準防火地域等
取引形態
媒介
ローンシュミレーションはこちら
ローンシュミレーションはこちら

LIFE INFORMATION

小田急線「梅ヶ丘」駅
徒歩3分
世田谷線「山下」駅
徒歩7分
梅丘商店街
徒歩3分
えんこういん幼稚園
徒歩7分
豪徳寺保育園
徒歩4分
区立山崎小学校
徒歩7分
区立世田谷中学校
徒歩8分
梅丘図書館
徒歩7分
羽根木公園
徒歩6分

周辺環境

お気軽にお問い合わせください 03-3424-8111
定休日
毎週水曜日
メールでのお問い合わせはこちら

Company

株式会社 健ハウジング
東京都世田谷区北沢2-1-16(本社)
小田急線/井の頭線 下北沢駅 徒歩5分
  • 不動産売買物件
  • 不動産賃貸物件
  • 不動産投資収益物件
  • 採用サイト
  • facebook
Copyright (C)1998-2026 株式会社健ハウジング / 世田谷区の不動産会社