新築デザイン住宅「千歳烏山の家」

  • 緑豊かな住宅地と活気ある商店が共存する街「千歳烏山」
  • 玄関とウォークスルーでつながる電動シャッター付ビルトインガレージや、意匠を凝らしたリビングダイニング空間をはじめ、生活を彩る仕様・住宅設備が充実
  • 地盤・建物保証20年、住宅設備保証10年など保証制度が充実

新築戸建
名称 新築デザイン住宅「千歳烏山の家」
販売価格 22,800万円(税込)
所在地 東京都世田谷区上祖師谷1丁目
交通 京王線「千歳烏山」駅 徒歩14分
QRコード
  • この物件の近隣の小学校
  • この物件の近隣の中学校
  • ローンシュミレーションはこちら
この物件の現地を見たい
この物件の資料が欲しい
名称
新築デザイン住宅「千歳烏山の家」
販売価格
22,800万円(税込)
所在地
東京都世田谷区上祖師谷1丁目
交通
京王線「千歳烏山」駅 徒歩14分
土地権利
所有権
地目
宅地
土地面積
134.27m²(40.61坪)
建物面積
152.11m²(46.01坪)
※車庫面積(18.57m²)含む
構造・規模
木造2階建
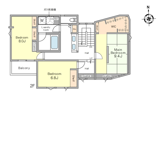
間取
4LDK
用途地域
第1種低層住居専用地域
防火指定
準防火地域
建ぺい率
50%
容積率
100%
高度地区
第1種高度地区
接道
南側約4m公道
総棟数
1棟
今回販売棟数
1棟
築年月
令和7年(2025年)12月完成
引渡
相談
設備
東京電力・都市ガス・公営水道・本下水
取引形態
媒介
ローンシュミレーションはこちら
ローンシュミレーションはこちら
ローンシュミレーションはこちら

LIFE INFORMATION

京王線「千歳烏山」駅
徒歩14分(1.0km)
子育てステーション烏山
徒歩10分(750m)
区立上祖師谷保育園
徒歩3分(240m)
区立塚戸小学校
徒歩12分(900m)
区立千歳中学校
徒歩9分(700m)
ライフ千歳烏山店
徒歩10分(800m)
シミズヤ千歳烏山店
徒歩12分(900m)
西友千歳烏山店
徒歩15分(1.1km)
祖師谷公園
徒歩8分(700m)
蘆花恒春園
徒歩13分(1.0km)
世田谷区役所烏山総合支所
徒歩15分(1.2km)
粕谷区民センター・粕谷図書館
徒歩6分(450m)

周辺環境

ローンシュミレーションはこちら

周辺MAP

 

おすすめ物件Recommend

13112
 
中古戸建
京王線 仙川
上祖師谷
22,000 万円
■京王線「仙川」駅徒歩10分の立地■車3台並列駐車可能なカースペース有り(車種によります)
13112
 
新築戸建
京王線 千歳烏山
上祖師谷
22,800 万円 (税込)
■新築分譲デザイン免震住宅■インテリアコーディネーター厳選の家具・家電付き
13112
 
中古戸建
京王井の頭線 池ノ上
代沢
25,800 万円 (税込)
■3路線3駅が利用可能で、通勤・通学の利便性良好です
13112
 
中古戸建
小田急線 豪徳寺
梅丘
23,800 万円 (税込)
■小田急線「豪徳寺」駅徒歩6分・東急世田谷線「山下」駅徒歩7分の立地■2020年5月・外装工事とスケルトンからの内装工事実施
お気軽にお問い合わせください 03-3424-8111
定休日
毎週水曜日
メールでのお問い合わせはこちら

Company

株式会社 健ハウジング
東京都世田谷区北沢2-1-16(本社)
小田急線/井の頭線 下北沢駅 徒歩5分
  • 不動産売買物件
  • 不動産賃貸物件
  • 不動産投資収益物件
  • 採用サイト
  • facebook
Copyright (C)1998-2026 株式会社健ハウジング / 世田谷区の不動産会社