RC造デザイン住宅「永福町の家」

  • 緑豊かな住宅街「永福4丁目」に佇むRC造デザイン住宅
  • 2025年9月新規内装リフォーム済み
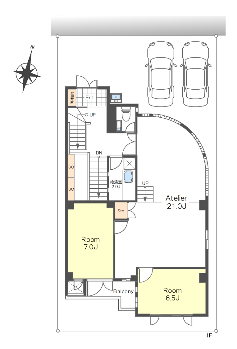
  • 吹抜けのあるLDK、アトリエ、ホビールームを備え、多目的に利用できるレイアウト
  • 趣味のための空間に限らず、オフィスやギャラリーとして利用可能です

戸建
名称 RC造デザイン住宅「永福町の家」
販売価格 29,800万円(税込)
所在地 東京都杉並区永福4丁目
交通 京王井の頭線
 「永福町」駅 徒歩8分
 「西永福」駅 徒歩12分
QRコード
  • この物件の近隣の小学校
  • この物件の近隣の中学校
  • ローンシュミレーションはこちら
この物件の現地を見たい
この物件の資料が欲しい
名称
RC造デザイン住宅「永福町の家」
販売価格
29,800万円(税込)
所在地
東京都杉並区永福4丁目
交通
京王井の頭線
 「永福町」駅 徒歩8分
 「西永福」駅 徒歩12分
土地権利
所有権
地目
宅地
土地面積
166.00m²(50.21坪)
建物面積
246.51m²(74.56坪)
構造・規模
RC造地下1階付3階建
間取
4LDK+アトリエ+ホビールーム
用途地域
第1種中高層住居専用地域
第1種低層住居専用地域
防火指定
準防火地域
建ぺい率
60%・50%
容積率
160%・100%
高度地区
第2種高度地区・第1種高度地区
接道
北側約3.9m公道
築年月
平成4年(1992年)7月築
現況
空家
引渡
相談
設備
東京電力・都市ガス・公営水道・本下水
備考
【2025年9月リフォーム内容】
・システムキッチン ・ユニットバス・トイレ ・クロス張替え ・内装鉄部塗装 ・宅配BOX設置等
〇本物件敷地は2つの用途地域にかかっており、建ぺい率/容積率はそれぞれの用途地域内の面積により加重平均されます
取引形態
媒介
ローンシュミレーションはこちら
ローンシュミレーションはこちら
ローンシュミレーションはこちら

LIFE INFORMATION

京王井の頭線「永福町」駅
徒歩8分(640m)
京王井の頭線「西永福」駅
徒歩12分(950m)
永福北保育園
徒歩9分(700m)
大宮幼稚園
徒歩7分(500m)
区立大宮小学校
徒歩9分(650m)
区立大宮中学校
徒歩11分(850m)
キッチンコート永福町店
徒歩8分(640m)
サミットストア西永福店
徒歩10分(750m)
ファミリーマート杉並永福四丁目店
徒歩3分(180m)
LaundryPro永福4丁目店
徒歩3分(180m)
不二家レストラン西永福店
徒歩9分(700m)
ロイヤルホスト永福町店
徒歩7分(550m)
区立永福図書館
徒歩9分(700m)
和田堀公園
徒歩9分(650m)
大宮八幡宮
徒歩6分(450m)
かつぬま内科クリニック
徒歩9分(700m)
杏林大学医学部付属杉並病院
徒歩23分(1.8km)
永福あにまるクリニック
徒歩6分(450m)

周辺環境

ローンシュミレーションはこちら

周辺MAP

 

おすすめ物件Recommend

13115
 
中古戸建
京王井の頭線 永福町
永福
26,800 万円 (税込)
■緑豊かな住宅街「永福4丁目」に佇むRC造デザイン住宅
13115
 
中古戸建
JR中央・総武線 荻窪
南荻窪
25,000 万円
■防音室がありますので、ピアノのレッスンやオーディオ再生など多用途にお使いいただけます
13115
 
中古戸建
JR中央線荻窪
桃井
33,800 万円 (税込)
■2006年大成建設施工・壁式RC造住宅■建物200㎡超・LDK25J・5LDK+ルーフバルコニー
13111
 
新築戸建
東急池上線 長原
上池台
24,800 万円 (税込)
■緑豊かな高台の住宅地「上池台4丁目」に建つ新築デザイン住宅
お気軽にお問い合わせください 03-3424-8111
定休日
毎週水曜日
メールでのお問い合わせはこちら

Company

株式会社 健ハウジング
東京都世田谷区北沢2-1-16(本社)
小田急線/井の頭線 下北沢駅 徒歩5分
  • 不動産売買物件
  • 不動産賃貸物件
  • 不動産投資収益物件
  • 採用サイト
  • facebook
Copyright (C)1998-2026 株式会社健ハウジング / 世田谷区の不動産会社