新築デザイン住宅「上目黒の家」

~こだわりの仕様~

  • 緑豊かな住宅街「上目黒4丁目」に完成した、こだわりの一邸
  • 「渋谷」駅へは直通6分、「中目黒」駅周辺も徒歩圏にある利便性の高い立地
  • 生活を彩る、仕様・住宅設備が充実
  • 耐震等級2取得・準耐火構造・第三者機関によるホームインスペクション済み

新築戸建
名称 新築デザイン住宅「上目黒の家」
所在地 東京都目黒区上目黒4丁目
交通 東急東横線
 「祐天寺」駅 徒歩7分
東急東横線・東京メトロ日比谷線
 「中目黒」駅 徒歩14分
QRコード
  • この物件の近隣の小学校
  • この物件の近隣の中学校
名称
新築デザイン住宅「上目黒の家」
所在地
東京都目黒区上目黒4丁目
交通
東急東横線
 「祐天寺」駅 徒歩7分
東急東横線・東京メトロ日比谷線
 「中目黒」駅 徒歩14分
土地権利
所有権
地目
宅地
土地面積
84.97m²(25.70坪)
※別途セットバック部分面積(3.62m²)あり
建物面積
137.24m²
※車庫面積(9.93m²)含む
構造
木造(在来軸組工法)3階建
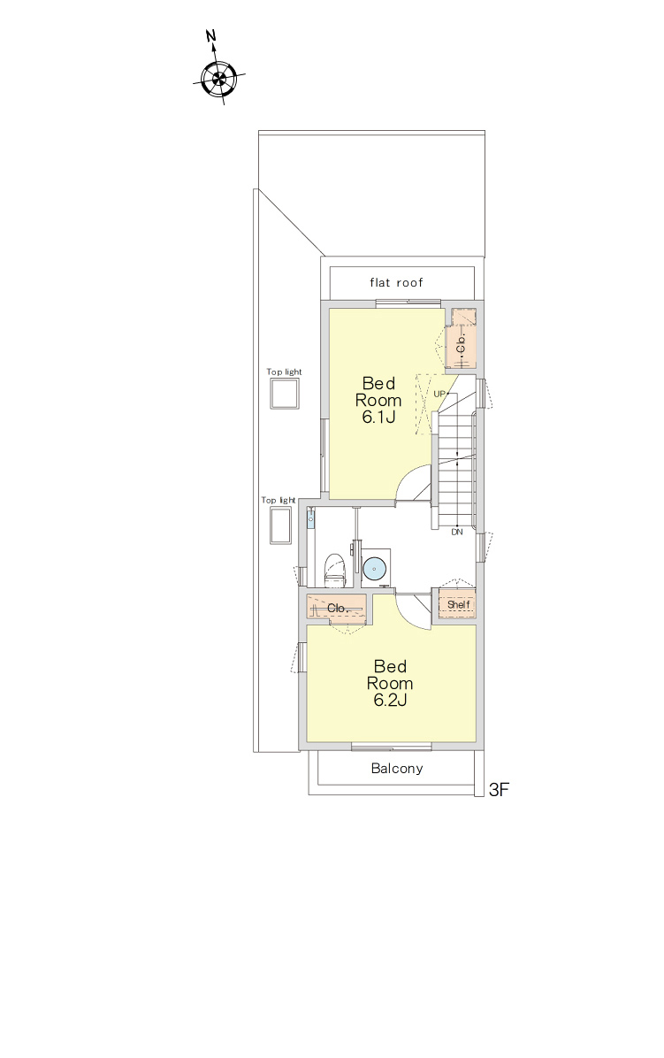
間取
2LDK+2S
用途地域
第1種低層住居専用地域
防火指定
準防火地域
建ぺい率
60%
容積率
150%
高度地区
第1種高度地区
接道
南側約4.0m公道
総棟数
1棟
今回販売棟数
1棟
築年月
令和6年(2024年)12月完成
引渡
相談
設備
東京電力・都市ガス・公営水道・本下水
取引形態
媒介
お気軽にお問い合わせください 03-3424-8111
定休日
毎週水曜日
メールでのお問い合わせはこちら

Company

株式会社 健ハウジング
東京都世田谷区北沢2-1-16(本社)
小田急線/井の頭線 下北沢駅 徒歩5分
  • 不動産売買物件
  • 不動産賃貸物件
  • 不動産投資収益物件
  • 採用サイト
  • facebook
Copyright (C)1998-2026 株式会社健ハウジング / 世田谷区の不動産会社