西荻窪 ゆとりある空間を活かした新築戸建

~こだわりの仕様~

  • 土地面積135.15m²(40.88坪)、建物面積187.66m²(56.76坪)、広さを活かした空間設計
    この住宅の広さが特に際立っている箇所が4つございます。
    1.玄関ホール8.7帖とは別にシューズインクローク3.7帖
    2.ガレージは幅約3.3m x 奥行約5.7m x 高さ約2.1m
    3.LDKは28帖、その南側にはL字型のガーデンテラス有り
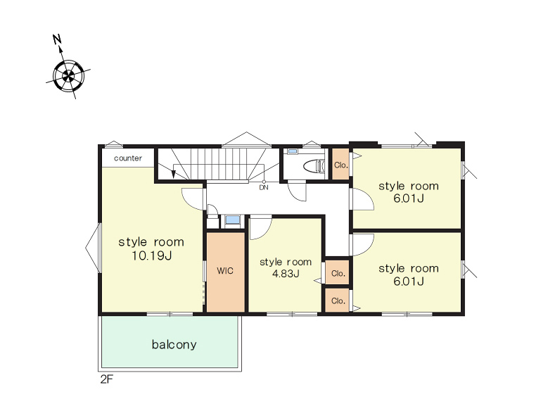
    4.主寝室は10.19帖にウォークインクロ―ゼット付
  • 耐震等級3を取得、地震に強い住宅
    制震ダンパーを装備した地震に強い住宅です。
    建物が揺れた際は、揺れ続けたり、変形・損傷したりしないように、
    構造に組み込んだ「ダンパー」と呼ばれる装置が変形することによってエネルギーを吸収し、揺れを抑えます
  • ZEH水準
    2024年4月から始まった、建築物省エネ法に基づく省エネ性能ラベルにおいて、
    この住宅は、エネルギー消費性能が☆3、断熱性能が5の住宅であり、ZEH水準を満たしています。
    ZEH水準があることで、今後住宅としての価値が高まります。

戸建
名称 西荻窪 ゆとりある空間を活かした新築戸建
所在地 東京都杉並区西荻北1丁目
交通 JR中央総武線
 「西荻窪」駅 徒歩12分
JR中央総武線・東京メトロ丸ノ内線
 「荻窪」駅 徒歩19分
QRコード
  • この物件の近隣の小学校
  • この物件の近隣の中学校
名称
西荻窪 
ゆとりある空間を活かした新築戸建
所在地
東京都杉並区西荻北1丁目
交通
JR中央総武線
 「西荻窪」駅 徒歩12分
JR中央総武線・東京メトロ丸ノ内線
 「荻窪」駅 徒歩19分
土地権利
所有権
種別
居宅
土地面積
135.15m²(約40.88坪)
※別途私道面積18.36m²有。
建物面積
187.66m²(約56.76坪)
※地下1階ガレージ22.35m²、1階備蓄倉庫3.10m²を含。
構造
木造地下鉄筋コンクリート造 地下1階付地上2階建
間取
4LDK
都市計画
市街化区域
用途地域
第一種低層住居専用地域
建ぺい率
50%
容積率
100%
防火指定
準防火地域
その他制限
第一種高度地区
接道
北側 約5.4m 公道
東側 約4.0m 私道
完成
2024年7月
現況
完成済
引渡
相談
設備
電気・ガス・上下水道
取引形態
媒介
お気軽にお問い合わせください 03-3424-8111
定休日
毎週水曜日
メールでのお問い合わせはこちら

Company

株式会社 健ハウジング
東京都世田谷区北沢2-1-16(本社)
小田急線/井の頭線 下北沢駅 徒歩5分
  • 不動産売買物件
  • 不動産賃貸物件
  • 不動産投資収益物件
  • 採用サイト
  • facebook
Copyright (C)1998-2026 株式会社健ハウジング / 世田谷区の不動産会社