世田谷区 弦巻2丁目 注文住宅

 ・建物面積206㎡(約62坪)以上のゆとりある快適空間
 ・全居室南向き3SLDKで12㎡のルーフテラス付き
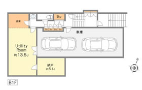
 ・天高約2.1m×幅約3.5m×奥行約10.8mのカースペースで最大2台駐車可能
 ・吹き抜けのあるユーティリティールームで開放感ある暮らしを実現した注文住宅
 ・ウッドデッキにガーデニングスペースもございますので緑豊かにお住まい頂けます。
 ・【2020年5月】 内外装修繕工事実施済

戸建
名称 世田谷区 弦巻2丁目 注文住宅
所在地 東京都世田谷区弦巻2丁目
交通 田園都市線「駒沢大学」駅 徒歩10分
田園都市線「桜新町」駅 徒歩14分
世田谷線「松陰神社前」駅 徒歩14分
QRコード
  • この物件の近隣の小学校
  • この物件の近隣の中学校
名称
世田谷区 弦巻2丁目 注文住宅
所在地
東京都世田谷区弦巻2丁目
交通
田園都市線「駒沢大学」駅 徒歩10分
田園都市線「桜新町」駅 徒歩14分
世田谷線「松陰神社前」駅 徒歩14分
地目
宅地
土地権利
所有権
土地面積
150.01m²(45.37坪)
建物面積
206.01m²(62.31坪)
(車庫面積39.70m²含む)
構造
木・鉄筋コンクリート造陸屋根・合金メッキ鋼板葺地下1階付2階建
間取り
3SLDK+カースペース2台
都市計画
市街化区域
用途地域
第一種低層住居専用地域
建ぺい率
50%
容積率
100%
防火指定
準防火地域
道路
北東側約6m公道
高度制限
第1種高度地区
設備
東京電力、公営水道、都市ガス、本下水
種類
居宅
築年数
2009年5月
現況
空家
引渡
相談
総棟数
1棟
今回販売棟数
1棟
取引態様
媒介
ローンシュミレーションはこちら
ローンシュミレーションはこちら

LIFE INFOMATION

区立東弦巻保育園
約400m
青葉学園幼稚園
約1,400m
区立弦巻小学校
約650m
区立弦巻中学校
約600m
世田谷線「松陰神社前」駅
約600m
田園都市線「駒沢大学」駅
約850m
田園都市線「桜新町」駅
約1,400m
世田谷駒沢二郵便局
約500m
スーパー西友 駒沢店
約650m
ローソン弦巻2丁目店
約170m
世田谷中央病院
約800m
世田谷交番
約950m
区立小泉公園
約300m
区立中央図書館
約1,200m

周辺環境

ローンシュミレーションはこちら
お気軽にお問い合わせください 03-3424-8111
定休日
毎週水曜日
メールでのお問い合わせはこちら

Company

株式会社 健ハウジング
東京都世田谷区北沢2-1-16(本社)
小田急線/井の頭線 下北沢駅 徒歩5分
  • 不動産売買物件
  • 不動産賃貸物件
  • 不動産投資収益物件
  • 採用サイト
  • facebook
Copyright (C)1998-2026 株式会社健ハウジング / 世田谷区の不動産会社